Morsetto di collegamento per punti fissi di terra e ferri d'armatura

Per il collegamento dell'armatura con cavallotto di fissaggio.
Per conduttori tondi oppure per punti fissi di terra con il contemporaneo collegamento nella cassaforma.

Posa del conduttore:
(II) = parallelo
(+) = a croce

Per diametri ridotti

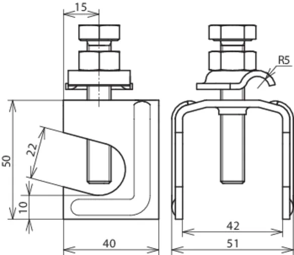
1 Prodotto

Art. 308035 VK 6.22 FL40 KB6.10 BSB STBL

GTIN (EAN) 4013364123472, Codice doganale (EU): 85359000, Peso lordo: 169.60 g, UM: 25.00 pz.


Immagini

Maggior informazioni

Morsetto di collegamento per collegamenti a "T", a croce e paralleli con cavallotto di fissaggio Fe/non zincato
Morsetto per il collegamento delle reti elettrosaldate oppure ferri di armatura con conduttori tondi oppure piatti
Materiale: Fe/non zincato
Campo di serraggio Td/Td: (+/II) 6-22 / 6-10 mm
Campo di serraggio Td/Pt: (+) 6-22 / 40 mm
Riferimento norma: CEI EN 62561-1
Corrente di corto circuito (AC 50 Hz / DC): 1,0 kA

Fabbricato: DEHN
Tipo: VK 6.22 FL40 KB6.10 BSB STBL
Art.: 308035
o similare.

Certificati

 

Caratteristiche tecniche

Materiale Fe/non zincato
Campo di serraggio Td/Td (+/II) 6-22 / 6-10 mm
Campo di serraggio Td/Pt (+) 6-22 / 40 mm
Vite di M10 x 60 mm
Riferimento norma CEI EN 62561-1
Corrente di corto circuito (AC 50 Hz / DC) (1 s; ≤ 300 °C) 1,0 kA
*) Per l’attribuzione precisa vedere il certificato di prova.

Prodotto 308035 è stato aggiunto al blocco note.

Prodotto 308035 è stato aggiunto al carrello.

Apri Web-Shop

Morsetto a cavallotto per diametri elevati

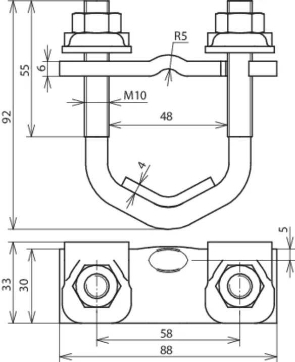
1 Prodotto

Art. 308046 BVK 16.48 FL40 KB6.10 BSB STBL

GTIN (EAN) 4013364124462, Codice doganale (EU): 85359000, Peso lordo: 292.40 g, UM: 25.00 pz.


Immagini

Maggior informazioni

Morsetto di collegamento per ferri d'armatura Fe/non zincato
Morsetti per il collegamento delle reti elettrosaldate oppure ferri di armatura con conduttori tondi oppure piatti
Materiale: Fe/non zincato
Campo di serraggio Td/Td: (+/II) 16-48 / 6-10 mm
Campo di serraggio Td/Pt: (II) 16-48 / 30-40 mm
Riferimento norma: CEI EN 62561-1
Corrente di corto circuito (AC 50 Hz / DC): 9,9 kA

Fabbricato: DEHN
Tipo: BVK 16.48 FL40 KB6.10 BSB STBL
Art.: 308046
o similare.

Certificati

 

Caratteristiche tecniche

Materiale Fe/non zincato
Campo di serraggio Td/Td (+/II) 16-48 / 6-10 mm
Campo di serraggio Td/Pt (II) 16-48 / 30-40 mm
Vite vite a cavallotto M10 x 48 mm
Riferimento norma CEI EN 62561-1
Corrente di corto circuito (AC 50 Hz / DC) (1 s; ≤ 300 °C) 9,9 kA
*) Per l’attribuzione precisa vedere il certificato di prova.

Prodotto 308046 è stato aggiunto al blocco note.

Prodotto 308046 è stato aggiunto al carrello.

Apri Web-Shop

back to top