Palo di captazione per posa sotto tetto con conduttura HVI light

Per montaggio sui supporti per puntoni.Posa all’interno, otticamente adattato, per conduttori HVI light in tubo di sostegno. I conduttori HVI light vengono condotti all’interno del tubo di supporto del puntone e posati nel campo della copertura.Vantaggi:
  • posa sotto tetto – otticamente non riconoscibile
  • montaggio con un unico tubo visibile
  • nessuna sollecitazione meccanica, p.es. per carico di neve
Ordine minimo 6 m. Indicare nell'ordine la lunghezza desiderata (multipli di 0,5).Vista la produzione riferita ad ogni singolo ordine (confezionamento della lunghezza del conduttore) il conduttore non può essere reso.

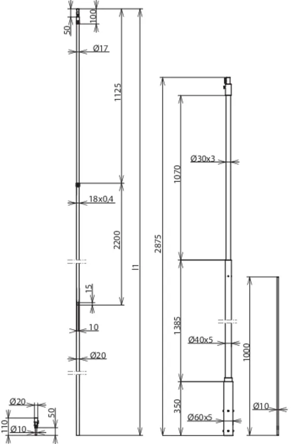
DEHNcon-H / conduttura HVI light nel tubo portante con punta di captazione

Con terminale per cavi interno e punta di captazione Ø10 mm.

1 Prodotto

Art. 819243 HVI LI 20 L6M SR2875 FSP1000 DSH GFK AL

GTIN (EAN) 4013364255951, Codice doganale (EU): 85389099, Peso lordo: 9.24 kg, UM: 1.00 pz.

Predecessore

Immagini

Maggior informazioni

Palo di captazione per posa sotto tetto con conduttura HVI light
Palo di captazione con conduttura HVI light e punta di captazione
per la posa sotto tetto con montaggio sui supporti per puntoni
La conduttura HVI light viene fatta passare attraverso il tubo di supporto del puntone
e posata nella zona della contro/copertura del tetto.
I tubi portanti sono dimensionati conformi
all’Eurocode 1 (DIN EN 1991-1-4 + DIN EN 1991-1-4/NA).
Conduttura DEHNcon-H HVI light nel tubo portante, con apposito
terminale situato internamente e punta di captazione Ø 10 mm lunghezza 1000 mm.
Materiale tubo portante: PRFV / Al
Lunghezza tubo portante : 2875 mm
Colore conduttura: grigio ●
Materiale conduttore: Cu
Distanza di sicurezza equivalente s (in aria): ≤ 45 cm
Ordine minimo : 6 m
Max. velocità delle raffiche di vento : 149 km/h
Riferimento normativo: DIN IEC/TS 62561-8 (VDE V 0185-561-8)

Fabbricato: DEHN
Tipo: HVI LI 20 L6M SR2875 FSP1000 DSH GFK AL
Art.: 819243
o similare.

Certificati

 

Caratteristiche tecniche

Materiale tubo portante PRFV / Al
Lunghezza tubo portante 2875 mm
Lunghezza punta di captazione 1000 mm
Diametro Ø esterno PRFV 30 mm
Diametro Ø conduttura 20 mm
Colore conduttura grigio
Materiale conduttore Cu
Distanza di sicurezza equivalente s (in aria) ≤ 45 cm
Ordine minimo 6 m
Max. velocità delle raffiche di vento 149 km/h
Riferimento normativo DIN IEC/TS 62561-8 (VDE V 0185-561-8)

Prodotto 819243 è stato aggiunto al blocco note.

Prodotto 819243 è stato aggiunto al carrello.

Apri Web-Shop

back to top