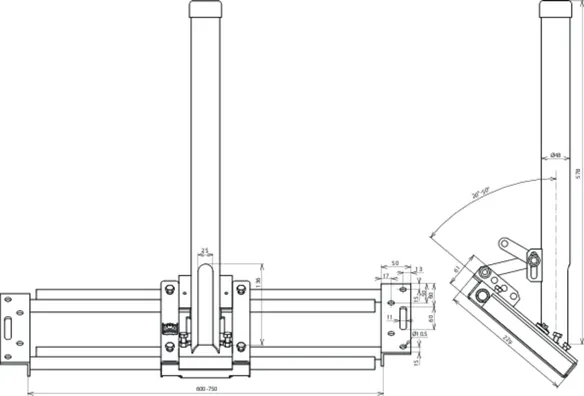
Puntone

Per il fissaggio laterale della
  • conduttura HVI light plus posata nel tubo portante (Ø 40 mm)
  • conduttura HVI posata nel tubo portante (Ø 50 mm),
  • nonché per il fissaggio a innesto di tubi portanti e la posa sottotetto della conduttura HVI o della conduttura HVI light plus.
Il supporto per puntone può essere montato su sottostrutture idonee e stabili.Il supporto per puntone è concepito per forze indotte fino a 320 Nm.Il montaggio si esegue dall’esterno e il supporto viene avvitato al puntone direttamente o attraverso la controlistellatura.Il supporto per puntone non può essere utilizzato in presenza di isolamenti sopra copertura; può essere utilizzato solo a certe condizioni in presenza di embrici.Avvertenza: è necessario chiarire sul posto la situazione di montaggio con il costruttore dell’edificio.

1 Prodotto

Art. 105240 DASH D48 AS600.750 STTZN

GTIN (EAN) 4013364135116, Codice doganale (EU): 73089098, Peso lordo: 7.23 kg, UM: 1.00 pz.


Immagini

Maggior informazioni

Puntone Fe/tZn
Puntone per il fissaggio
di aste di captazione e tubi portanti
con passaggio cavi per sistemi DEHNconductor
(comprese viti di fissaggio)
Materiale: Fe/tZn
Campo di regolazione: 600-750 mm
Inclinazione del tetto: 20-50°
Diametro Ø tubo portante: 48 mm
Diametro Ø passacavo nel tubo portante: 25 mm

Fabbricato: DEHN
Tipo: DASH D48 AS600.750 STTZN
Art.: 105240
o similare.

 

Caratteristiche tecniche

Materiale Fe/tZn
Campo di regolazione 600-750 mm
Inclinazione del tetto 20-50°
Diametro Ø tubo portante 48 mm
Vite di fissaggio l 8 x 120 mm

Prodotto 105240 è stato aggiunto al blocco note.

Prodotto 105240 è stato aggiunto al carrello.

Apri Web-Shop

back to top