Tripode per tubi portanti con uscita laterale

Supporto per l’attacco di tubi portanti HVI per conduttura HVI posata all’interno o all’esterno del tubo portante, con cavallotto doppio di fissaggio per la connessione di 2x Td 8-10 mm. Adattamento all’inclinazione del tetto fino a max 10° mediante fissaggio variabile al supporto dello zoccolo.

Sono disponibili separatamente tra i rispettivi accessori gli zoccoli in cemento sovrapponibili, le piastre di base e il set di supporto degli zoccoli per l’attacco di ulteriori zoccoli in cemento.

Avviso: è possibile richiedere a DEHN informazioni sulla tollerabilità del materiale delle staffe portafili per tetti e delle basi di supporto in combinazione con le parti del tetto.

Tripode piccolo

Per aste di captazione D40, tubi portanti DEHNiso-Combi con punta / asta di captazione oppure conduttura HVI, posata sul/nel tubo portante.

1 Prodotto

Art. 107390 DBS KB D50 RA680 V2A

GTIN (EAN) 4013364478466, Codice doganale (EU): 85389099, Peso lordo: 7.75 kg, UM: 1.00 pz.

Predecessore

Immagini

Maggior informazioni

Tripode piccolo INOX (versione pieghevole)
Tripode (versione pieghevole) per tubi portanti
D 50 mm con uscita laterale o asta di captazione
D 40 mm con accessorio riduttore
Con cavallotto doppio di fissaggio per la connessione di 2 Td 8-10 mm
Per il montaggio con zoccoli in cemento (peso 17 kg)
Compensazione dell’angolo di inclinazione del tetto fino a max 10°
Zoccolo in cemento sovrapponibile (art. n. 102 010)
Piastra di base (art. n. 102 050)
Set di supporto per lo zoccolo (n. art. 107 396)
Gli accessori riduttori (n. art. 107 399)
sono da ordinare separatamente.
I tripodi sono dimensionati conformi
all’Eurocode 1 (DIN EN 1991-1-4 + DIN EN 1991-1-4/NA)
.
Materiale del supporto: INOX
Serraggio: 50 e 40*) mm
Raggio: 680 mm

Fabbricato: DEHN
Tipo: DBS KB D50 RA680 V2A
Art.: 107390
o similare.

Certificati

 

Caratteristiche tecniche

Materiale del supporto INOX
Serraggio 50 e 40*) mm
Raggio 680 mm
Ingombro tripode 1175 x 1020 mm
*) Solo con kit adattatore n. art. 107 399.

Prodotto 107390 è stato aggiunto al blocco note.

Prodotto 107390 è stato aggiunto al carrello.

Apri Web-Shop

Tripode grande

Per aste di captazione D40, tubi portanti DEHNiso-Combi con punta / asta di captazione oppure conduttura HVI, posata sul/nel tubo portante.

1 Prodotto

Art. 107391 DBS KB D50 RA1330 V2A

GTIN (EAN) 4013364478473, Codice doganale (EU): 85389099, Peso lordo: 15.60 kg, UM: 1.00 pz.

Predecessore

Immagini

Maggior informazioni

Tripode grande INOX (versione pieghevole)
Tripode (versione pieghevole) per tubi portanti
D 50 mm con uscita laterale e cavallotto doppio di fissaggio per
la connessione di 2 Td 8-10 mm, per l’installazione con
zoccolo in cemento (peso 17 kg), con adattamento, tramite
Set di supporto per lo zoccolo su inclinazione del tetto fino a max 10°.
Zoccolo in cemento sovrapponibile (art. n. 102 010)
Piastra di base (art. n. 102 050)
Set di supporto per lo zoccolo (n. art. 107 396)
Gli accessori riduttori (n. art. 107 399)
sono da ordinare separatamente.
I tripodi sono dimensionati conformi
all’Eurocode 1 (DIN EN 1991-1-4 + DIN EN 1991-1-4/NA)
.
Materiale del supporto: INOX
Serraggio: 50 e 40*) mm
Raggio: 1330 mm

Fabbricato: DEHN
Tipo: DBS KB D50 RA1330 V2A
Art.: 107391
o similare.

Certificati

 

Caratteristiche tecniche

Materiale del supporto INOX
Serraggio 50 e 40*) mm
Raggio 1330 mm
Ingombro tripode 2300 x 1995 mm
*) Solo con kit adattatore n. art. 107 399.

Prodotto 107391 è stato aggiunto al blocco note.

Prodotto 107391 è stato aggiunto al carrello.

Apri Web-Shop

Quadripode piccolo

Per aste di captazione D40, tubi portanti DEHNiso-Combi con punta / asta di captazione oppure conduttura HVI, posata sul/nel tubo portante.

1 Prodotto

Art. 107490 VBS KB D50 RA680 V2A

GTIN (EAN) 4013364478480, Codice doganale (EU): 85389099, Peso lordo: 10.38 kg, UM: 1.00 pz.


Immagini

Maggior informazioni

Quadripode piccolo INOX (versione pieghevole)
Quadripode (versione pieghevole) per tubi portanti
D 50 mm con uscita laterale o asta di captazione
D 40 mm con accessorio riduttore
Con cavallotto doppio di fissaggio per la connessione di 2 Td 8-10 mm
Per il montaggio con zoccoli in cemento (peso 17 kg)
Compensazione dell’angolo di inclinazione del tetto fino a max 10°
Zoccolo in cemento sovrapponibile (art. n. 102 010)
Piastra di base (art. n. 102 050)
Set di supporto per lo zoccolo (n. art. 107 396)
Accessorio riduttore (n. art. 107 399)
sono da ordinare separatamente.
I quadripodi sono dimensionati secondo
Eurocodice 1 (UNI EN 1991-1-4 + UNI EN 1991-1-4/NA)
.
Materiale del supporto: INOX
Serraggio: 50 e 40*) mm
Raggio: 680 mm

Fabbricato: DEHN
Tipo: VBS KB D50 RA680 V2A
Art.: 107490
o similare.

Certificati

 

Caratteristiche tecniche

Materiale del supporto INOX
Serraggio 50 e 40*) mm
Raggio 680 mm
Ingombro tripode 960 x 960 mm
*) Solo con kit adattatore n. art. 107 399.

Prodotto 107490 è stato aggiunto al blocco note.

Prodotto 107490 è stato aggiunto al carrello.

Apri Web-Shop

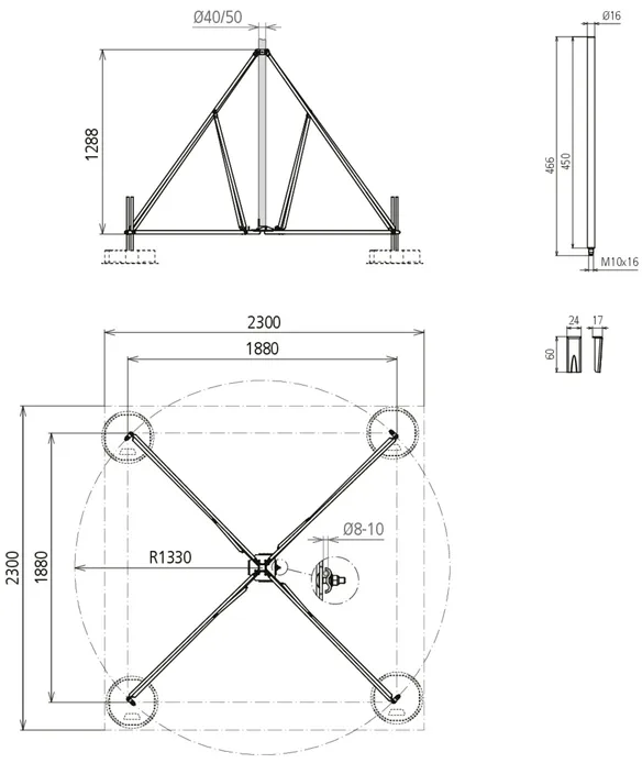
Quadripode grande

Per aste di captazione D40, tubi portanti DEHNiso-Combi con punta / asta di captazione oppure conduttura HVI, posata sul/nel tubo portante.

1 Prodotto

Art. 107491 VBS KB D50 RA1330 V2A

GTIN (EAN) 4013364478497, Codice doganale (EU): 85389099, Peso lordo: 17.63 kg, UM: 1.00 pz.


Immagini

Maggior informazioni

Quadripode grande INOX (versione pieghevole)
Quadripode (versione pieghevole) per tubi portanti
D 50 mm con uscita laterale o asta di captazione
D 40 mm con accessorio riduttore
Con cavallotto doppio di fissaggio per la connessione di 2 Td 8-10 mm
Per il montaggio con zoccoli in cemento (peso 17 kg)
Compensazione dell’angolo di inclinazione del tetto fino a max 10°
Zoccolo in cemento sovrapponibile (art. n. 102 010)
Piastra di base (art. n. 102 050)
Set di supporto per lo zoccolo (n. art. 107 396)
Accessorio riduttore (n. art. 107 399)
sono da ordinare separatamente.
I quadripodi sono dimensionati secondo
Eurocodice 1 (UNI EN 1991-1-4 + UNI EN 1991-1-4/NA)
.
Materiale del supporto: INOX
Serraggio: 50 e 40*) mm
Raggio: 1330 mm

Fabbricato: DEHN
Tipo: VBS KB D50 RA1330 V2A
Art.: 107491
o similare.

Certificati

 

Caratteristiche tecniche

Materiale del supporto INOX
Serraggio 50 e 40*) mm
Raggio 1330 mm
Ingombro tripode 1880 x 1880 mm
*) Solo con kit adattatore n. art. 107 399.

Prodotto 107491 è stato aggiunto al blocco note.

Prodotto 107491 è stato aggiunto al carrello.

Apri Web-Shop

back to top