Asta di captazione indipendente da 4 a 9 m

Asta di captazione indipendente, con tripode pieghevole per la protezione di grandi costruzioni sul tetto e la possibilità di adattamento all'inclinazione del tetto fino a max 10°.

Lo zoccolo in cemento adatto per la sovrapposizione (Art. 102 050) e la base di supporto (Art. 102 050) sono da ordinare separatamente.

Componenti:
– tubo Ø 40 x 5 mm
– asta di captazione tubulare con riduzione Ø 16 / 10 mm; opzionale Ø22 / 16 / 10 mm
– cavallotto doppio per 2x td 8-10 mm
– tripode per zoccolo in cemento con cuneo

Indicazione: è necessario rispettare la capacità di carico del tetto ed eventualmente chiarire con il costruttore.

Fino ad un'altezza di 5,5 m

4 Prodotti

Art. 105400 FS D40 16 10 4000 AL DBS KB STTZN

GTIN (EAN) 4013364094383, Codice doganale (EU): 85389099, Peso lordo: 13.40 kg, UM: 1.00 pz.


Immagini

Maggior informazioni

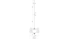
Asta di captazione indipendente, altezza 4000 mm
Aste di captazione indipendenti con tripode ripiegabile
per la protezione di grandi strutture installate su tetto,
con adattamento all'inclinazione del tetto fino a max 10 gradi.
Le aste di captazione sono dimensionate secondo
Eurocode 1 (DIN EN 1991-1-4 + DIN EN 1991-1-4/NA) per una
velocità delle raffiche di vento non superiore a 185 km/h.
Lo zoccolo in cemento sovrapponibile (art. n. 102 010) e la
piastra di base (art. n. 102 050) sono da ordinare separatamente.
Altezza: 4000 mm
Raggio: 560 mm
Max. velocità delle raffiche di vento con 3 zoccoli da 17 Kg: 132 km/h
Max. velocità delle raffiche di vento con 6 zoccoli da 17 Kg: 184 km/h
Max. velocità delle raffiche di vento con 9 zoccoli da 17 Kg: 185 km/h
Ingombro tripode: 1210 x 1340 mm
Materiale tripode: Fe/tZn
Materiale asta di captazione: Al
Riferimento norma: CEI EN 62561-(1+2)

Fabbricato: DEHN
Tipo: FS D40 16 10 4000 AL DBS KB STTZN
Art.: 105400
o similare.

Certificati

 

Caratteristiche tecniche

Altezza 4000 mm
Raggio 560 mm
Max. velocità delle raffiche di vento con 3 zoccoli da 17 Kg 132 km/h
Max. velocità delle raffiche di vento con 6 zoccoli da 17 Kg 184 km/h
Max. velocità delle raffiche di vento con 9 zoccoli da 17 Kg 185 km/h
Ingombro tripode 1210 x 1340 mm
Materiale tripode Fe/tZn
Materiale asta di captazione Al
Riferimento norma CEI EN 62561-(1+2)

Prodotto 105400 è stato aggiunto al blocco note.

Prodotto 105400 è stato aggiunto al carrello.

Apri Web-Shop

Art. 105450 FS D40 22 16 10 4500 AL DBS KB STTZN

GTIN (EAN) 4013364094413, Codice doganale (EU): 85389099, Peso lordo: 13.80 kg, UM: 1.00 pz.


Immagini

Maggior informazioni

Asta di captazione indipendente, altezza 4500 mm
Aste di captazione indipendenti con tripode ripiegabile
per la protezione di grandi strutture installate su tetto,
con adattamento all'inclinazione del tetto fino a max 10 gradi.
Le aste di captazione sono dimensionate secondo
Eurocode 1 (DIN EN 1991-1-4 + DIN EN 1991-1-4/NA) per una
velocità delle raffiche di vento non superiore a 186 km/h.
Lo zoccolo in cemento sovrapponibile (art. n. 102 010) e la
piastra di base (art. n. 102 050) sono da ordinare separatamente.
Altezza: 4500 mm
Raggio: 560 mm
Max. velocità delle raffiche di vento con 3 zoccoli da 17 Kg: 117 km/h
Max. velocità delle raffiche di vento con 6 zoccoli da 17 Kg: 163 km/h
Max. velocità delle raffiche di vento con 9 zoccoli da 17 Kg: 186 km/h
Ingombro tripode: 1210 x 1340 mm
Materiale tripode: Fe/tZn
Materiale asta di captazione: Al
Riferimento norma: CEI EN 62561-(1+2)

Fabbricato: DEHN
Tipo: FS D40 22 16 10 4500 AL DBS KB STTZN
Art.: 105450
o similare.

Certificati

 

Caratteristiche tecniche

Altezza 4500 mm
Raggio 560 mm
Max. velocità delle raffiche di vento con 3 zoccoli da 17 Kg 117 km/h
Max. velocità delle raffiche di vento con 6 zoccoli da 17 Kg 163 km/h
Max. velocità delle raffiche di vento con 9 zoccoli da 17 Kg 186 km/h
Ingombro tripode 1210 x 1340 mm
Materiale tripode Fe/tZn
Materiale asta di captazione Al
Riferimento norma CEI EN 62561-(1+2)

Prodotto 105450 è stato aggiunto al blocco note.

Prodotto 105450 è stato aggiunto al carrello.

Apri Web-Shop

Art. 105500 FS D40 16 10 5000 AL DBS KB STTZN

GTIN (EAN) 4013364094420, Codice doganale (EU): 85389099, Peso lordo: 15.00 kg, UM: 1.00 pz.


Immagini

Maggior informazioni

Asta di captazione indipendente, altezza 5000 mm
Aste di captazione indipendenti con tripode ripiegabile
per la protezione di grandi strutture installate su tetto,
con adattamento all'inclinazione del tetto fino a max 10 gradi.
Le aste di captazione sono dimensionate secondo
Eurocode 1 (DIN EN 1991-1-4 + DIN EN 1991-1-4/NA) per una
velocità delle raffiche di vento non superiore a 163 km/h.
Lo zoccolo in cemento sovrapponibile (art. n. 102 010) e la
piastra di base (art. n. 102 050) sono da ordinare
separatamente.
Altezza: 5000 mm
Raggio: 560 mm
Max. velocità delle raffiche di vento con 3 zoccoli da 17 Kg: 99 km/h
Max. velocità delle raffiche di vento con 6 zoccoli da 17 Kg: 132 km/h
Max. velocità delle raffiche di vento con 9 zoccoli da 17 Kg: 163 km/h
Ingombro tripode: 1210 x 1340 mm
Materiale tripode: Fe/tZn
Materiale asta di captazione: Al
Riferimento norma: CEI EN 62561-(1+2)

Fabbricato: DEHN
Tipo: FS D40 16 10 5000 AL DBS KB STTZN
Art.: 105500
o similare.

Certificati

 

Caratteristiche tecniche

Altezza 5000 mm
Raggio 560 mm
Max. velocità delle raffiche di vento con 3 zoccoli da 17 Kg 99 km/h
Max. velocità delle raffiche di vento con 6 zoccoli da 17 Kg 132 km/h
Max. velocità delle raffiche di vento con 9 zoccoli da 17 Kg 163 km/h
Ingombro tripode 1210 x 1340 mm
Materiale tripode Fe/tZn
Materiale asta di captazione Al
Riferimento norma CEI EN 62561-(1+2)

Prodotto 105500 è stato aggiunto al blocco note.

Prodotto 105500 è stato aggiunto al carrello.

Apri Web-Shop

Art. 105550 FS D40 22 16 10 5500 AL DBS KB STTZN

GTIN (EAN) 4013364094437, Codice doganale (EU): 85389099, Peso lordo: 15.20 kg, UM: 1.00 pz.


Immagini

Maggior informazioni

Asta di captazione indipendente, altezza 5500 mm
Aste di captazione indipendenti con tripode ripiegabile
per la protezione di grandi strutture installate su tetto,
con adattamento all'inclinazione del tetto fino a max 10 gradi.
Le aste di captazione sono dimensionate secondo
Eurocode 1 (DIN EN 1991-1-4 + DIN EN 1991-1-4/NA) per una
velocità delle raffiche di vento non superiore a 147 km/h.
Lo zoccolo in cemento sovrapponibile (art. n. 102 010) e la
piastra di base (art. n. 102 050) sono da ordinare separatamente.
Altezza: 5500 mm
Raggio: 560 mm
Max. velocità delle raffiche di vento con 3 zoccoli da 17 Kg: 93 km/h
Max. velocità delle raffiche di vento con 6 zoccoli da 17 Kg: 121 km/h
Max. velocità delle raffiche di vento con 9 zoccoli da 17 Kg: 147 km/h
Ingombro tripode: 1210 x 1340 mm
Materiale tripode: Fe/tZn
Materiale asta di captazione: Al
Riferimento norma: CEI EN 62561-(1+2)

Fabbricato: DEHN
Tipo: FS D40 22 16 10 5500 AL DBS KB STTZN
Art.: 105550
o similare.

Certificati

 

Caratteristiche tecniche

Altezza 5500 mm
Raggio 560 mm
Max. velocità delle raffiche di vento con 3 zoccoli da 17 Kg 93 km/h
Max. velocità delle raffiche di vento con 6 zoccoli da 17 Kg 121 km/h
Max. velocità delle raffiche di vento con 9 zoccoli da 17 Kg 147 km/h
Ingombro tripode 1210 x 1340 mm
Materiale tripode Fe/tZn
Materiale asta di captazione Al
Riferimento norma CEI EN 62561-(1+2)

Prodotto 105550 è stato aggiunto al blocco note.

Prodotto 105550 è stato aggiunto al carrello.

Apri Web-Shop

Fino ad un'altezza di 9 m con piedistallo regolabile in INOX Ø10 mm

7 Prodotti

Art. 105600 FS D40 16 10 6000 AL DBS KB STTZN

GTIN (EAN) 4013364094444, Codice doganale (EU): 85389099, Peso lordo: 29.40 kg, UM: 1.00 pz.


Immagini

Maggior informazioni

Asta di captazione indipendente, altezza 6000 mm
Aste di captazione indipendenti con tripode ripiegabile
per la protezione di grandi strutture installate su tetto,
con adattamento all'inclinazione del tetto fino a max 10 gradi.
Le aste di captazione sono dimensionate secondo
Eurocode 1 (DIN EN 1991-1-4 + DIN EN 1991-1-4/NA) per una
velocità delle raffiche di vento non superiore a 187 km/h.
Lo zoccolo in cemento sovrapponibile (art. n. 102 010) e la
piastra di base (art. n. 102 050) sono da ordinare
separatamente.
Altezza: 6000 mm
Raggio: 1435 mm
Max. velocità delle raffiche di vento con 3 zoccoli da 17 Kg: 110 km/h
Max. velocità delle raffiche di vento con 6 zoccoli da 17 Kg: 137 km/h
Max. velocità delle raffiche di vento con 9 zoccoli da 17 Kg: 170 km/h
Max. velocità delle raffiche di vento con 12 zoccoli da 17 Kg: 187 km/h
Ingombro tripode: 2530 x 2850 mm
Materiale tripode: Fe/tZn
Materiale asta di captazione: Al
Riferimento norma: CEI EN 62561-(1+2)

Fabbricato: DEHN
Tipo: FS D40 16 10 6000 AL DBS KB STTZN
Art.: 105600
o similare.

Certificati

 

Caratteristiche tecniche

Altezza 6000 mm
Raggio 1435 mm
Max. velocità delle raffiche di vento con 3 zoccoli da 17 Kg 110 km/h
Max. velocità delle raffiche di vento con 6 zoccoli da 17 Kg 137 km/h
Max. velocità delle raffiche di vento con 9 zoccoli da 17 Kg 170 km/h
Max. velocità delle raffiche di vento con 12 zoccoli da 17 Kg 187 km/h
Ingombro tripode 2530 x 2850 mm
Materiale tripode Fe/tZn
Materiale asta di captazione Al
Riferimento norma CEI EN 62561-(1+2)

Prodotto 105600 è stato aggiunto al blocco note.

Prodotto 105600 è stato aggiunto al carrello.

Apri Web-Shop

Art. 105650 FS D40 22 16 10 6500 AL DBS KB STTZN

GTIN (EAN) 4013364094451, Codice doganale (EU): 85389099, Peso lordo: 30.00 kg, UM: 1.00 pz.


Immagini

Maggior informazioni

Asta di captazione indipendente, altezza 6500 mm
Aste di captazione indipendenti con tripode ripiegabile
per la protezione di grandi strutture installate su tetto,
con adattamento all'inclinazione del tetto fino a max 10 gradi.
Le aste di captazione sono dimensionate secondo
Eurocode 1 (DIN EN 1991-1-4 + DIN EN 1991-1-4/NA) per una
velocità delle raffiche di vento non superiore a 187 km/h.
Lo zoccolo in cemento sovrapponibile (art. n. 102 010) e la
piastra di base (art. n. 102 050) sono da ordinare separatamente.
Altezza: 6500 mm
Raggio: 1435 mm
Max. velocità delle raffiche di vento con 3 zoccoli da 17 Kg: 105 km/h
Max. velocità delle raffiche di vento con 6 zoccoli da 17 Kg: 132 km/h
Max. velocità delle raffiche di vento con 9 zoccoli da 17 Kg: 159 km/h
Max. velocità delle raffiche di vento con 12 zoccoli da 17 Kg: 187 km/h
Ingombro tripode: 2530 x 2850 mm
Materiale tripode: Fe/tZn
Materiale asta di captazione: Al
Riferimento norma: CEI EN 62561-(1+2)

Fabbricato: DEHN
Tipo: FS D40 22 16 10 6500 AL DBS KB STTZN
Art.: 105650
o similare.

Certificati

 

Caratteristiche tecniche

Altezza 6500 mm
Raggio 1435 mm
Max. velocità delle raffiche di vento con 3 zoccoli da 17 Kg 105 km/h
Max. velocità delle raffiche di vento con 6 zoccoli da 17 Kg 132 km/h
Max. velocità delle raffiche di vento con 9 zoccoli da 17 Kg 159 km/h
Max. velocità delle raffiche di vento con 12 zoccoli da 17 Kg 187 km/h
Ingombro tripode 2530 x 2850 mm
Materiale tripode Fe/tZn
Materiale asta di captazione Al
Riferimento norma CEI EN 62561-(1+2)

Prodotto 105650 è stato aggiunto al blocco note.

Prodotto 105650 è stato aggiunto al carrello.

Apri Web-Shop

Art. 105700 FS D40 16 10 7000 AL DBS KB STTZN

GTIN (EAN) 4013364094468, Codice doganale (EU): 85389099, Peso lordo: 31.20 kg, UM: 1.00 pz.


Immagini

Maggior informazioni

Asta di captazione indipendente, altezza 7000 mm
Aste di captazione indipendenti con tripode ripiegabile
per la protezione di grandi strutture installate su tetto,
con adattamento all'inclinazione del tetto fino a max 10 gradi.
Le aste di captazione sono dimensionate secondo
Eurocode 1 (DIN EN 1991-1-4 + DIN EN 1991-1-4/NA) per una
velocità delle raffiche di vento non superiore a 163 km/h.
Lo zoccolo in cemento sovrapponibile (art. n. 102 010) e la
piastra di base (art. n. 102 050) sono da ordinare separatamente.
Altezza: 7000 mm
Raggio: 1435 mm
Max. velocità delle raffiche di vento con 3 zoccoli da 17 Kg: 96 km/h
Max. velocità delle raffiche di vento con 6 zoccoli da 17 Kg: 120 km/h
Max. velocità delle raffiche di vento con 9 zoccoli da 17 Kg: 137 km/h
Max. velocità delle raffiche di vento con 12 zoccoli da 17 Kg: 163 km/h
Ingombro tripode: 2530 x 2850 mm
Materiale tripode: Fe/tZn
Materiale asta di captazione: Al
Riferimento norma: CEI EN 62561-(1+2)

Fabbricato: DEHN
Tipo: FS D40 16 10 7000 AL DBS KB STTZN
Art.: 105700
o similare.

Certificati

 

Caratteristiche tecniche

Altezza 7000 mm
Raggio 1435 mm
Max. velocità delle raffiche di vento con 3 zoccoli da 17 Kg 96 km/h
Max. velocità delle raffiche di vento con 6 zoccoli da 17 Kg 120 km/h
Max. velocità delle raffiche di vento con 9 zoccoli da 17 Kg 137 km/h
Max. velocità delle raffiche di vento con 12 zoccoli da 17 Kg 163 km/h
Ingombro tripode 2530 x 2850 mm
Materiale tripode Fe/tZn
Materiale asta di captazione Al
Riferimento norma CEI EN 62561-(1+2)

Prodotto 105700 è stato aggiunto al blocco note.

Prodotto 105700 è stato aggiunto al carrello.

Apri Web-Shop

Art. 105750 FS D40 22 16 10 7500 AL DBS KB STTZN

GTIN (EAN) 4013364094475, Codice doganale (EU): 85389099, Peso lordo: 31.40 kg, UM: 1.00 pz.


Immagini

Maggior informazioni

Asta di captazione indipendente, altezza 7500 mm
Aste di captazione indipendenti con tripode ripiegabile
per la protezione di grandi strutture installate su tetto,
con adattamento all'inclinazione del tetto fino a max 10 gradi.
Le aste di captazione sono dimensionate secondo
Eurocode 1 (DIN EN 1991-1-4 + DIN EN 1991-1-4/NA)
per una velocità delle raffiche di vento non superiore a 149 km/h.
Lo zoccolo in cemento sovrapponibile (art. n. 102 010) e la
piastra di base (art. n. 102 050) sono da ordinare separatamente.
Altezza: 7500 mm
Raggio: 1435 mm
Max. velocità delle raffiche di vento con 3 zoccoli da 17 Kg: 93 km/h
Max. velocità delle raffiche di vento con 6 zoccoli da 17 Kg: 112 km/h
Max. velocità delle raffiche di vento con 9 zoccoli da 17 Kg: 135 km/h
Max. velocità delle raffiche di vento con 12 zoccoli da 17 Kg: 149 km/h
Ingombro tripode: 2530 x 2850 mm
Materiale tripode: Fe/tZn
Materiale asta di captazione: Al
Riferimento norma: CEI EN 62561-(1+2)

Fabbricato: DEHN
Tipo: FS D40 22 16 10 7500 AL DBS KB STTZN
Art.: 105750
o similare.

Certificati

 

Caratteristiche tecniche

Altezza 7500 mm
Raggio 1435 mm
Max. velocità delle raffiche di vento con 3 zoccoli da 17 Kg 93 km/h
Max. velocità delle raffiche di vento con 6 zoccoli da 17 Kg 112 km/h
Max. velocità delle raffiche di vento con 9 zoccoli da 17 Kg 135 km/h
Max. velocità delle raffiche di vento con 12 zoccoli da 17 Kg 149 km/h
Ingombro tripode 2530 x 2850 mm
Materiale tripode Fe/tZn
Materiale asta di captazione Al
Riferimento norma CEI EN 62561-(1+2)

Prodotto 105750 è stato aggiunto al blocco note.

Prodotto 105750 è stato aggiunto al carrello.

Apri Web-Shop

Art. 105800 FS D40 16 10 8000 AL DBS KB STTZN

GTIN (EAN) 4013364094338, Codice doganale (EU): 85389099, Peso lordo: 32.60 kg, UM: 1.00 pz.


Immagini

Maggior informazioni

Asta di captazione indipendente, altezza 8000 mm
Aste di captazione indipendenti con tripode ripiegabile
per la protezione di grandi strutture installate su tetto,
con adattamento all'inclinazione del tetto fino a max 10 gradi.
Le aste di captazione sono dimensionate secondo
Eurocode 1 (DIN EN 1991-1-4 + DIN EN 1991-1-4/NA) per una
velocità delle raffiche di vento non superiore a 137 km/h.
Lo zoccolo in cemento sovrapponibile (art. n. 102 010) e la
piastra di base (art. n. 102 050) sono da ordinare separatamente.
Altezza: 8000 mm
Raggio: 1435 mm
Max. velocità delle raffiche di vento con 6 zoccoli da 17 Kg: 105 km/h
Max. velocità delle raffiche di vento con 9 zoccoli da 17 Kg: 124 km/h
Max. velocità delle raffiche di vento con 12 zoccoli da 17 Kg: 137 km/h
Ingombro tripode: 2530 x 2850 mm
Materiale tripode: Fe/tZn
Materiale asta di captazione: Al
Riferimento norma: CEI EN 62561-(1+2)

Fabbricato: DEHN
Tipo: FS D40 16 10 8000 AL DBS KB STTZN
Art.: 105800
o similare.

Certificati

 

Caratteristiche tecniche

Altezza 8000 mm
Raggio 1435 mm
Max. velocità delle raffiche di vento con 6 zoccoli da 17 Kg 105 km/h
Max. velocità delle raffiche di vento con 9 zoccoli da 17 Kg 124 km/h
Max. velocità delle raffiche di vento con 12 zoccoli da 17 Kg 137 km/h
Ingombro tripode 2530 x 2850 mm
Materiale tripode Fe/tZn
Materiale asta di captazione Al
Riferimento norma CEI EN 62561-(1+2)

Prodotto 105800 è stato aggiunto al blocco note.

Prodotto 105800 è stato aggiunto al carrello.

Apri Web-Shop

Art. 105850 FS D40 22 16 10 8500 AL DBS KB STTZN

GTIN (EAN) 4013364094482, Codice doganale (EU): 85389099, Peso lordo: 32.80 kg, UM: 1.00 pz.


Immagini

Maggior informazioni

Asta di captazione indipendente, altezza 8500 mm
Aste di captazione indipendenti con tripode ripiegabile
per la protezione di grandi strutture installate su tetto,
con adattamento all'inclinazione del tetto fino a max 10 gradi.
Le aste di captazione sono dimensionate secondo
Eurocode 1 (DIN EN 1991-1-4 + DIN EN 1991-1-4/NA) per una
velocità delle raffiche di vento non superiore a 132 km/h.
Lo zoccolo in cemento sovrapponibile (art. n. 102 010) e la
piastra di base (art. n. 102 050) sono da ordinare separatamente.
Altezza: 8500 mm
Raggio: 1435 mm
Max. velocità delle raffiche di vento con 6 zoccoli da 17 Kg: 101 km/h
Max. velocità delle raffiche di vento con 9 zoccoli da 17 Kg: 117 km/h
Max. velocità delle raffiche di vento con 12 zoccoli da 17 Kg: 132 km/h
Ingombro tripode: 2530 x 2850 mm
Materiale tripode: Fe/tZn
Materiale asta di captazione: Al
Riferimento norma: CEI EN 62561-(1+2)

Fabbricato: DEHN
Tipo: FS D40 22 16 10 8500 AL DBS KB STTZN
Art.: 105850
o similare.

Certificati

 

Caratteristiche tecniche

Altezza 8500 mm
Raggio 1435 mm
Max. velocità delle raffiche di vento con 6 zoccoli da 17 Kg 101 km/h
Max. velocità delle raffiche di vento con 9 zoccoli da 17 Kg 117 km/h
Max. velocità delle raffiche di vento con 12 zoccoli da 17 Kg 132 km/h
Ingombro tripode 2530 x 2850 mm
Materiale tripode Fe/tZn
Materiale asta di captazione Al
Riferimento norma CEI EN 62561-(1+2)

Prodotto 105850 è stato aggiunto al blocco note.

Prodotto 105850 è stato aggiunto al carrello.

Apri Web-Shop

Art. 105900 FS D40 22 16 10 9000 AL DBS KB STTZN

GTIN (EAN) 4013364240766, Codice doganale (EU): 85389099, Peso lordo: 33.67 kg, UM: 1.00 pz.


Immagini

Maggior informazioni

Asta di captazione indipendente, altezza 9000 mm
Aste di captazione indipendenti con tripode ripiegabile
per la protezione di grandi strutture installate su tetto,
con adattamento all'inclinazione del tetto fino a max 10 gradi.
Le aste di captazione sono dimensionate secondo
Eurocode 1 (DIN EN 1991-1-4 + DIN EN 1991-1-4/NA) per una
velocità delle raffiche di vento non superiore a 132 km/h.
Lo zoccolo in cemento sovrapponibile (art. n. 102 010) e la
piastra di base (art. n. 102 050) sono da ordinare separatamente.
Altezza: 9000 mm
Raggio: 1435 mm
Max. velocità delle raffiche di vento con 6 zoccoli da 17 Kg: 101 km/h
Max. velocità delle raffiche di vento con 9 zoccoli da 17 Kg: 117 km/h
Max. velocità delle raffiche di vento con 12 zoccoli da 17 Kg: 132 km/h
Ingombro tripode: 2530 x 2850 mm
Materiale tripode: Fe/tZn
Materiale asta di captazione: Al
Riferimento norma: CEI EN 62561-(1+2)

Fabbricato: DEHN
Tipo: FS D40 22 16 10 9000 AL DBS KB STTZN
Art.: 105900
o similare.

Certificati

 

Caratteristiche tecniche

Altezza 9000 mm
Raggio 1435 mm
Max. velocità delle raffiche di vento con 6 zoccoli da 17 Kg 101 km/h
Max. velocità delle raffiche di vento con 9 zoccoli da 17 Kg 117 km/h
Max. velocità delle raffiche di vento con 12 zoccoli da 17 Kg 132 km/h
Ingombro tripode 2530 x 2850 mm
Materiale tripode Fe/tZn
Materiale asta di captazione Al
Riferimento norma CEI EN 62561-(1+2)

Prodotto 105900 è stato aggiunto al blocco note.

Prodotto 105900 è stato aggiunto al carrello.

Apri Web-Shop

back to top