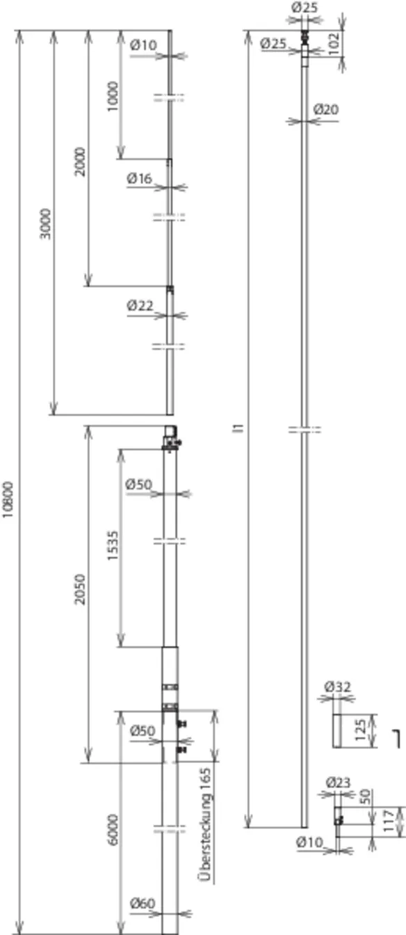
Palo di captazione con conduttura HVI

La lunghezza libera massima (sopra i fissaggi) dell'intero sistema di captazione non deve superare 8,5 m.
Il fissaggio deve essere realizzato con 3 staffe variabili (Art. 105 345).

Il palo di captazione componibile è composto da:
– asta di captazione Al Ø22 / 16 / 10 mm, lunghezza 3000 mm
– tubo portante PRFV/Al Ø 50 / 60 mm, lunghezza 2100 mm (sovrapposizione del tubo di 200 mm)
– palo Fe/tZn Ø 60 mm, lunghezza 6000 mm con viti di arresto M10 in INOX
– conduttura HVI posata internamente / esternamente
– lunghezza trasporto 6000 mm

Palo di captazione con conduttura HVI

Esecuzione con 1x conduttura HVI posata all'interno. Indicare la lunghezza della conduttura al momento dell'ordine (multipli di 0,5 m).

Lunghezza massima totale della conduttura HVI 12,5 m con classe di protezione II dell'impianto parafulmine.
Lunghezza massima totale della conduttura HVI 18,5 m con classe di protezione III dell'impianto parafulmine.

1 Prodotto

Art. 819730 FM 60 L11M IP HVI M L10M GFK AL STTZN

GTIN (EAN) 4013364243477, Codice doganale (EU): 85389099, Peso lordo: 53.54 kg, UM: 1.00 pz.

Predecessore

Immagini

Maggior informazioni

Pali di captazione con conduttura HVI
Pali di captazione con conduttura HVI
calata isolata resistente all’alta tensione,
per il rispetto della distanza di separazione
dalle parti elettricamente conduttive
secondo la norma DIN EN 62305-3 (VDE 0185-305-3)
Adatti all’impiego, ad es., in impianti di fermentazione o
per accumulatori di gas in impianti di biogas
secondo la classe di protezione II del sistema di protezione da fulmini.
I pali di captazione sono dimensionati conformi
all’Eurocode 1 (DIN EN 1991-1-4 + DIN EN 1991-1-4/NA).
Il dispositivo di captazione è costituito da:
-asta di captazione in Al Ø 22/16/10 mm lunghezza 3000 mm
-tubo portante PRFV/Al Ø 50/60 mm
-tubo del palo Fe/tZn Ø 60 mm
inoltre
3 pz. supporti variabili (art. n. 105 345)
Lunghezza libera massima dell’intero dispositivo di captazione: 8,5 m.
Versione con 1x conduttura HVI posata internamente,
Lunghezza minima ordinabile 10,0 m.
Le ulteriori, necessarie lunghezze della conduttura HVI
sono da ordinare separatamente.
Massima lunghezza complessiva delle condutture HVI (LPS II) 12,5 m.
Massima lunghezza complessiva delle condutture HVI (LPS III) 18,5 m.
Lunghezza totale palo: 10800 mm
Lunghezza asta di captazione: 3000 mm
Lunghezza tubo portante: 2100 mm
Lunghezza tubo palo: 6000 mm
Diametro Ø conduttore: 20 mm
Colore conduttura: nero ●
Materiale conduttore: Cu
Lunghezza minima ordine: 10 m
Max. velocità delle raffiche di vento : (max lunghezza libera 8500 mm, 1 HVI all’interno) 156 km/h
Riferimento normativo: DIN IEC/TS 62561-8 (VDE V 0185-561-8)

Fabbricato: DEHN
Tipo: FM 60 L11M IP HVI M L10M GFK AL STTZN
Art.: 819730
o similare.

Certificati

 

Caratteristiche tecniche

Lunghezza totale palo 10800 mm
Lunghezza asta di captazione 3000 mm
Lunghezza tubo portante 2100 mm
Lunghezza tubo palo 6000 mm
Colore conduttura nero ●
Lunghezza minima ordine 10 m
Riferimento normativo DIN IEC/TS 62561-8 (VDE V 0185-561-8)

Prodotto 819730 è stato aggiunto al blocco note.

Prodotto 819730 è stato aggiunto al carrello.

Apri Web-Shop

back to top